Печка с дълго горене: опростен дизайн за Направи си сам
необходимост в отоплителни гаражи, работилници и други помещения за битови нужди ви кара да търсите прости и евтини начини за отоплението им. В ерата на нискотарифното електричество нямаше проблеми с това - можеше да се използва елементарен нагревател за въздух, сглобен от парче азбестова тръба и нихромова спирала. Днес работата дори на икономичен инфрачервен нагревател ще струва доста стотинки и е по-добре изобщо да не си спомняте за безгладното занаятчийско оборудване.
Изходът от тази ситуация лежи на повърхността - достатъчно е да направите печка с котлон със собствени ръце. Занаятчиите са разработили повече от дузина прости и ефективни структури, предназначени да използват течни или твърди горива. Ако вашият избор е нагревател на дърва или на дърва, няма да намерите по-добър дизайн от печката с дълго горене.
съдържание
Тайните на дългосрочната експлоатация на агрегатите за твърдо гориво
Скрийте цялата тайна на дългите печки в метода на пълнене на гориво в нея. Дървата за огрев в такава пещ се запалват отгоре, така че няма опасност едновременно да изгорят всички трупи, положени в горивната камера.
В допълнение, методът за подаване на въздух допринася за това. Кислородът, необходим за изгарянето, идва само до горния слой гориво. Подобни решения дават възможност да се увеличи размерът на отметката толкова, колкото позволяват размерите на пещта. Разбира се, продължителността на непрекъснатата работа на такива единици се увеличава десетократно.
Пиролитичното разлагане на твърдо гориво, което се случва при висока температура и липса на кислород, позволява допълнително да се увеличи продължителността на един отоплителен цикъл. Дървата за огрев не горят, а тлее, като същевременно образуват голям брой летливи въглеводородни съединения. Пиролизните газове се изгарят под покрива на пещта с отделянето на голямо количество топлина. По този начин тлеенето допринася за удължаването на продължителния период на горене и пиролизата позволява многократно да повишава ефективността на топлинния генератор.
Друг вариант за пещи с дълго горене е Bubafonya. Можете да го направите сами у дома. В следващата ни статия са представени диаграма и стъпка по стъпка инструкции за инсталиране:https://aquatech.tomathouse.com/otoplenie/bubafonya-svoimi-rukami.html.
Устройството и принципът на работа на печка с дълго горене
Описаните по-горе методи за увеличаване на времето на непрекъсната експлоатация на пещта са успешно приложени при изграждането на пещ, която предлагаме за производство. Агрегатът се състои само от няколко части и се отличава с необичайната си простота, което обаче не му пречи успешно да се конкурира с по-сложни отоплителни устройства.
Дървата за огрев се полагат в случая, който най-често се изпълнява под формата на цилиндър. Отгоре горивото се притиска от устройство за разпределение на въздуха под формата на кух прът с бутало (тежък метален диск, в центъра на който е направен отвор за подаване на въздух). Опора на ножовете (остриетата) са заварени към дъното на стоманената палачинка, ширината на която определя височината на пролуката между горивото и буталото. С други думи, размерът на горивната камера зависи от размера на лопатките. Към гърба на диска е заварена тръба, през която въздухът навлиза в пещта. За да регулира количеството си, каналът може да бъде напълно или частично блокиран с плъзгащ се затвор.
В горната част на печката е нарязана тръба за свързване на комина. За да се осигури правилно сцепление, височината на тръбата трябва да бъде най-малко 4 m. Отгоре на устройството е затворен с капак, който има отвор за устройството за разпределение на въздуха.
Първичният въздух се подава директно под буталото, което разделя работното пространство на две камери. Прецизното дозиране на кислорода прави възможно намаляването на интензитета на пламъка, допринасяйки за преминаването към режим на генериране на газ. В този случай топлинната енергия се освобождава не само чрез изгаряне на гориво, но и от пиролизни газове, които активно се изгарят под капака. Вторичният кислород за тяхното окисляване се подава през специален прозорец в горната част на пещта, а в най-простия случай - през пролуката между тръбата за подаване на въздух и горния капак. След изгарянето на горния слой дърва за огрев, металният диск пада под собствената си тежест, осигурявайки достъп на кислород до новия горивен хоризонт.
Продуктите от горенето се отстраняват от пещта през комин, врязан в горната част на тялото. За да се увеличи допълнително топлопредаването, коминът е свързан към отоплителното устройство с помощта на малък хоризонтален преход, който играе ролята на въздушен топлообменник.
Какво трябва да работите: инструменти и материали
Този модел на печка с „дълго игра“ може да бъде направен само за няколко часа. Всичко, което е необходимо за това, е голямо желание и правилна организация на работния процес. Също така ще трябва да разберете задълбочено дизайна на устройството и да подготвите предварително всичко необходимо.
От инструментите, от които ще се нуждаете:
- заваръчна машина - най-доброто за тези цели е малък, лек инвертор с възможност за регулиране на силата на тока до 200 A;
- ъглошлайф (разговорна мелница или "мелница");
- режещи и шлифовъчни дискове, предназначени за метални работи;
- пробивна машина или електрическа бормашина;
- комплект свредла;
- чук със среден размер;
- горелка;
- длето;
- чук;
- лента и метална линийка;
- сърцевина (устройство, предназначено за маркиране, улесняващо пробиване);
- писалка за маркиране на метални повърхности.
Що се отнася до материалите, не е необходимо точно да следвате списъка. Цялото очарование на домашните дизайни се крие именно във факта, че те ще използват всяко желязо, което може да се намери в задния двор или в ъглите на гаража (работилницата).
И така, списъкът на необходимите материали:
- стоманени тръби с диаметър от 80 до 250 мм, които са необходими за производството на достъпен въздух и комин;
- подходящ метален контейнер с диаметър от 300 до 600 мм с дебелина на стената най-малко 2,5 мм (можете да използвате бутилка с изтекъл срок на годност, варел с гориво или дължина на тръбата най-малко 120 см);
- метален лист с дебелина най-малко 4–5 mm, от който ще бъде направено буталото за разпределение на въздуха;
- здрави метални панти, които ще са необходими за закрепване на вратите на пещта и пепелта;
- азбестов шнур (необходим е за запечатване на товарния прозорец и други работни отвори);
- ъгли с рафт от 50 мм, канали и профилни тръби - за производство на въздушни дифузьори, опорни крака и други конструктивни елементи;
- кръгла метална палачинка с дебелина най-малко 5 мм и диаметър 120–150 мм (можете да вземете всяка подходяща предавка или зъбно колело от моторни превозни средства);
Ако се планира оборудването на отоплителното устройство с водна риза, тогава в допълнение е необходимо да се подготви листова стомана с дебелина най-малко 2 мм и тръби за свързване на течната верига към отоплителната магистрала (захранване с гореща вода).
Тръбите се използват и при сглобяването на котлон с водна верига. Инструкциите стъпка по стъпка са дадени в нашата статия:https://aquatech.tomathouse.com/otoplenie/burzhuyka-s-vodyanyim-konturom-svoimi-rukami.html
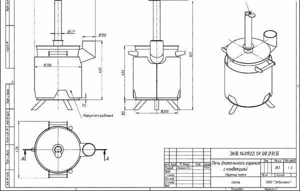
Как правилно да проектирате печка с дълго горене: диаграми и чертежи
Като външен корпус на пиролизна печка за горене можете да вземете всеки подходящ контейнер. Използването на отпадъчни материали ще направи възможно получаването на нагревател с почти нулева цена. Единственото нещо, което трябва да се направи, е да се проектират всички останали конструктивни елементи в съответствие с размерите на избрания случай. Това ще позволи да се изгради не само евтина, но и производителна, икономична пещ.
За да определите размера и параметрите, които влияят на производителността и топлинната ефективност на печката, можете да използвате специална схема. За да се направи изчисление, като се започне от размерите на намерения капацитет, е необходимо да се измери диаметърът му (D) и височината (H). Това ще бъдат външните параметри на нагревателя.
Пълна процедура за изчисление:
- Съотношението на диаметъра (D) и височината (H) на котлона трябва да бъде в рамките на 1: 3 (5). В твърде тясна и висока печка зоната на изгаряне на продуктите от горенето ще се разтегне във височина, което означава, че част от газовете няма да могат да се запалят навреме и просто да отидат в тръбата. Ако изградите ниска и широка единица, тогава изгарянето на повърхността ще бъде твърде неравномерно. Въздухът тече в средата на отметката, така че горивото ще изгори там много по-бързо, отколкото в краищата. Това ще доведе до образуване на депресия в центъра на отметката и буталото, което да виси върху неизгорели останки при стените. В същото време не може да се говори за каквато и да е нормална работа и особено изгаряне на пиролиза.
- Издръжливостта на отоплителното устройство зависи от дебелината на метала (Δ), необходима за производството на корпуса. За тези цели е най-подходящ контейнер със стени от 4–5 mm.
- При изчисляване на разпределителя на въздуха е важно правилно да се определи не само диаметърът, но и дебелината на буталото. Масивната част ще загрява и активно загрява въздуха, влизащ в зоната на горене, което ще има положителен ефект върху работата на печката. Освен това тънкият диск няма да бъде притиснат плътно към горната равнина на отметката и това ще доведе до увеличаване на въздушната междина и неекономичен разход на гориво.Буталото, което е твърде тежко, напротив, ще има тенденция да намалява луфта. Прекомерното уплътняване на горивото може да доведе до пълно затихване на печката. Ситуацията се усложнява от факта, че теглото на метална палачинка зависи не само от дебелината й, но и от нейния диаметър. Следователно, колкото по-голямо е буталото, толкова по-фин е металът, който се взема за неговото производство.
- Пропастта между отметката за гориво и диска за разпределение на въздуха се определя от височината на ребрата (лопатките) на буталото. Има и готови таблици за тяхното изчисляване. Ако размерите на конструкцията не се вписват в тяхната рамка, тогава изчисляването на лопатките се извършва по метода на пропорциите.
- Ефективността на подаването на въздух към зоната на горене зависи от конфигурацията на краищата на палачинката за разпределение на въздуха. Не трябва да вървите по най-простата пътека, заваряване на прави участъци от ъгли или профилни тръби към буталото. По-добре е да огънете остриетата в полукръг и да заварявате под формата на турбина. Въздушният поток в този случай няма да бъде ламинарен, а бурен, така че тлеенето на горивото, а оттам и отделянето на газ, ще бъде по-интензивно. Предимството на къдравите остриета се крие във факта, че потокът от пиролизни газове ще бъде по-активно изтласкан към периферията, ускорявайки циркулацията на газа.
- Когато изчислявате комина, използвайте формулата S = 1,75P, където P е мощността на отопление на нагревателя в kW / h. Получената стойност се закръглява, коригирайки числата към диаметъра на тръбите, които са на разположение.
- На входа на комина е монтиран въртящ се амортисьор, наречен порта. Той ще е необходим за регулиране на сцеплението.
- Сечението на тръбата за подаване на въздух d трябва да бъде 2 пъти по-малко от диаметъра на комина. За да се пренасочи потока му към лопатките, на канала за подаване на въздух е инсталиран дифузьор. За целта можете да използвате диск Ø120–150 mm с отвор в центъра Ø15–20 mm или всяка подходяща част от автомобилна или селскостопанска техника.
- Между отвора в зареждащата врата и тръбата за подаване на въздух трябва да се остави празнина δ, която трябва да бъде не повече от 2,5 мм. Необходим е за подаване на вторичен кислород в зоната за изгаряне. Тук трябва да бъдете особено внимателни и да не надвишавате препоръчителните стойности, в противен случай излишъкът от въздух ще „сифонира“ към комина, като едновременно с това изтегля пиролизни газове в тръбата. За същите цели не отказвайте да инсталирате яка. Размерът му L се приема равен на 80 × δ, но не по-висок от 200 mm.
- Дължината на тръбата за подаване на въздух се изчислява въз основа на факта, че при напълно спуснат диск, той трябва да се издигне над яката до височина q = L + 150.
Разбира се, не е необходимо да се спазват размерите на всички части на пещта. Без последствия, те могат да бъдат закръглени във всяка посока. Що се отнася до пропуските и виозите, правилната работа на нагревателя зависи от техния размер. Тези параметри трябва напълно да съответстват на изчислените стойности.
Не е необходимо да инсталирате врата на пещ за печка с диаметър 450 mm или повече, тъй като единицата лесно се зарежда с дърва през горната част. Ако обаче като корпус се използва газов цилиндър, тогава трудностите по време на неговата работа чакат не толкова по време на полагането на гориво, а по-скоро при почистване на печката от пепел. Така че дълъг, тесен контейнер не причинява неудобства по време на работа, ще трябва да инсталирате врата за пепелник.
За да не оборудвате отвора за почистване на фурната, можете да използвате диска със страни, които са спуснати до дъното. Стоманен прът, заварен към центъра му, ще ви позволи лесно да извадите контейнера за пепел. Металният прът изобщо не пречи на работата на котлона - след като инсталирате пепелника на дъното, той се преминава през тръба за подаване на въздух.
Схемите и чертежите ви позволяват точно да определите всички структурни параметри на отоплителното устройство и да изградите продуктивна печка с котлон от всеки подходящ резервоар. Не е необходимо да се придържате точно към размерите - достатъчно е да наблюдавате съотношенията между всички компоненти на конструкцията.
Фотогалерия: схеми и чертежи на печка с дълго горене
- Чертеж на пиролизна печка с водна верига
- Конструкция на пещ с конвекция
- Проста печка за дърва за огрев и дървени стърготини
- Схема на пещ с горещ конус с кухи конуси
- Чертеж на пиролизна пещ за въглища и палети
Как да се изгради пещ с дълго горене от метална цев
Можете да го изградите само за няколко часа, а материалът за работата ще бъде използван метален варел от горивото, дебел метален лист и различни парчета тръби, ъгли и канали. Разбира се, такъв евтин вариант има определени недостатъци, свързани с малката дебелина на стената - това се отразява както на топлинния капацитет на конструкцията, така и на нейния експлоатационен живот. Независимо от това използването на такова измерено тяло има своите предимства:
- силата на звука ще позволи на печката да работи до 12 часа на един раздел;
- дори ако с течение на времето стените на цевта изгорят, тогава тялото на печката може да бъде бързо заменено;
- напречното сечение на отвора за зареждане улеснява отоплението и поддръжката на печката, така че можете да направите, без да подреждате прозорец за зареждане и пепел.
Поетапното изпълнение на работата ще позволи да се избегнат грешки и да се улесни производството на отоплителен блок, което може да бъде полезно както за начинаещ, така и за домашен майстор с опит.
Подготвителна работа
За изграждането на обикновен топлогенератор за дърва е подходяща всяка стоманена цев от химически реагенти, горива и смазочни материали и др. Тази работа трябва да се извършва внимателно и точно, в противен случай по време на работа буталото за разпределение на въздуха ще виси над дървото, което ще доведе до нарушаване на нормалната работа на устройството.
Ако стените на цевта са покрити с остатъци от масло, лепило или боя, тогава те се изстрелват с помощта на газова горелка или вентилатор. След това всички повърхности се почистват с твърда метална четка. Разбира се, с пълна увереност в целостта на стените, можете да направите без изстрел и остъргване на стените, но ако контейнерът е бил съхраняван дълго време на открито, няма по-добър начин да го подготвите.
Тъй като буталото и остриетата са направени от дебел метал, ще бъде доста трудно да ги нарежете с шлайф. По-добре е да използвате услугите на автосервиз за това или да се свържете с производството. По правило там можете да намерите опитен заварчик, работещ с газов резач или плазмена горелка. Той ще може да изреже необходимите части за няколко минути, а всичко, което ви остава, е да свалите капки от разтопен метал върху набраздено колело.
Може да ви е необходим материал с препоръки за работа с газово заваряване:https://aquatech.tomathouse.com/uchebnik/svarka/zamena-batarej-gazosvarkoj.html.
Следващият етап на подготвителната работа е подборът и правилното подреждане на място за инсталиране на пещ с подложка. При инсталирането му е необходимо да се гарантира изпълнението на няколко задължителни условия:
- Основата на пода трябва да бъде равна, хоризонтална повърхност. Независимо от това как печката ще почива на пода - крака или долната част на тялото, основата на обекта е защитена с негорими материали. Най-добре е, ако това е тухлена тухла, но можете да използвате плочи от азбестови влакна или метални листове. Разбира се, последните две опции са подходящи само за полагане върху негорими повърхности.
- Пещта трябва да се монтира далеч от местата за съхранение на горива, смазочни материали и запалими материали. Не се допуска инсталиране на дървен генератор на топлина под приставки, рафтове и др.
- Когато избирате място, не забравяйте да помислите как ще бъде подреден коминът. Ако цялата вертикална част минава извън сградата, тогава част от комина се полага хоризонтално. В противен случай лъвският дял от топлината просто ще бъде хвърлен във въздуха. Ако тръбата преминава на закрито, тогава пещта се монтира по всякакъв начин.
Трябва да се разбере, че удължаването на хоризонталната секция на комина с повече от 400-500 мм е изпълнено с намаляване на сцеплението, което в крайна сметка ще доведе до намаляване на ефективността на печката.
Както всеки друг генератор на топлина с открит пламък, печката с дълго горене по време на работа изгаря значително количество кислород. В началния етап трябва да помислите как ще се подава въздух. Без добра вентилационна система работата с фурната може да бъде опасна.
Стъпка по стъпка инструкции за изработка на печка "Направи си сам"
Цялата основна работа по производството на този тип пещ се състои от няколко етапа:
- Цевта е монтирана върху твърда, равномерна повърхност и капакът е отрязан от нея. За да направите това, най-добре е да използвате шлифовъчна машина, прерязвайки заварката в мястото на нейното закрепване към тялото. Това ще ви позволи внимателно да отделите горната част, като сте получили цилиндрично тяло с фабрично завършване на ръба. Не е необходимо да изхвърляте отрязаната част - след малко усъвършенстване, тя ще служи като горния люк на пещта.
- Горната част на цевта трябва да бъде леко огъната навътре, намалявайки нейния диаметър с 2-3 см. За да направите това, е удобно да използвате шейна и чук, чийто нападател е заместен отвътре, под линията на завоя.
- Заготовката, предназначена за производството на капака, се поставя върху метална плоча, след което с мощни удари кувалчетата огъват страната си навън. Такова изгаряне е необходимо, така че частта да прилепне плътно към тялото. Този метод не е идеален от гледна точка на естетиката. Перфекционерите могат да бъдат посъветвани да отрежат края на капака, така че частта да проникне плътно в цилиндричното тяло. След това е необходимо да заварите метален диск със същия диаметър върху детайла като самата цев. Равна плоска повърхност впоследствие ще служи като печка за загряване на вода или храна. Вместо тапата, с която са оборудвани повечето бъчви с гориво, можете да инсталирате плъзгащ се затвор. Това ще ви позволи точно да контролирате количеството вторичен въздух, подаван в зоната за изгаряне.
- Отвор за тръбата за подаване на въздух е изрязан в центъра на капака. Диаметърът му трябва да бъде с 1–2,5 мм по-голям, в противен случай няма да има достатъчно въздух във вторичната зона на горене. Разбира се, ако горната част на котлона е оборудвана с допълнителен амортисьор, тогава сдвояването на частите може да бъде направено възможно най-плътно.
- Монтирайте яката. За да направите това, лента с ширина 50–100 мм се изрязва от метален лист, с който по контура се заварява дупка.
- За производството на буталото вземете стоманен лист с дебелина, която съответства на изчислените стойности. Ако искате да получите най-евтиното възможно отоплително устройство, а необходимия материал не е под ръка, тогава можете да отрежете дъното от друга цев. Тъй като дебелината на получения детайл не осигурява необходимата коравина и достатъчна маса на буталото, е необходимо да се направят малки трансформации с частта. Първо, металния кант, който върви по периметъра му, е огънат навътре, докато металната палачинка свободно влезе в корпуса на пещта.В никакъв случай страната не може да бъде отрязана - тя ще служи като външен усилвател. На второ място, за да се увеличи масата на буталото в горната му равнина, се заварява допълнителен товар. По своето качество можете да вземете всякакви плоски части - зъбни колела, зъбни колела, шайби и др. Основното е, че те могат да осигурят прогнозното тегло на устройството за разпределение на въздуха. Допълнително предимство в този случай е повишеният топлинен капацитет на буталото.
- В натискащия диск се изрязва отвор, равен на външния диаметър на тръбата за подаване на въздух. След това върху долната част на буталото е необходимо да заварявате лопатките, необходими за разпределението на кислорода по цялата повърхност на отметката за гориво. Ширината на тези части ще формира височината на работната зона и това има огромно влияние както върху производителността на печката, така и върху нейната ефективност. Най-добре е да не се отклонявате от параметрите на дизайна с милиметър при производството на буталото.
- Към палачинката под налягане е заварена тръба за подаване на въздух. За да направите това, металният диск се полага с лопатките надолу върху равна повърхност, а точността на монтиране се контролира от ниво или отвес - частите трябва да бъдат свързани в строго перпендикулярни равнини.
- Отстрани на каналите, в центъра на буталото трябва да бъде заварен разделител. Ако тази част е изрязана от метален лист, тогава в центъра на детайла се извършва пробиване с диаметър до 20 мм.
- Горната част на тръбата за подаване на въздух е оборудвана с амортисьор за регулиране на количеството първичен въздух. По-добре е, ако този възел е оборудван с някакъв фиксатор.
- В горната четвърт на цилиндричното тяло се изрязва отвор за монтиране на изходната тръба. Тази част е поставена на място и се вари с плътен шев.
- От външната страна на дъното се монтира опорна рамка с крака, изработени от подходящи тръбни секции или ъгли.
- За производството на комин се използват тръби с дължина 0,4–0,5 м и 4–5 м, които са свързани чрез ъглов преход с увеличен диаметър. В долната част на комина се вкарва сферичен клапан за отстраняване на кондензат. Интерфейсът е внимателно запечатан с азбест или базалт.
За да се премахнат температурните разлики, които водят до конденз, коминът е оборудван с външен корпус, а образуваното пространство между стените му е запълнено с минерална изолация. В допълнение, горната част на комина е защитена от валежи с метална капачка.
След инсталирането на постоянно място, печката е свързана към комина и се пълни с гориво. Печките с дълго горене са тествани след монтажа на буталото и горния капак.
Как правилно да работите с печката
Само суха дървесина е подходяща за използване в пиролизни пещи за отопление. Това се дължи на факта, че при изгаряне на мокро гориво се отделя много водна пара, което намалява температурата в работната зона. Разбира се, в този случай ефикасното изгаряне на пиролизните газове не е изключено. Освен това има и други неприятни моменти, свързани с непълно изгаряне на летливите компоненти. Първо, охлаждайки се в комина, те падат върху стените му под формата на катран, креозот и други трудно отстраними вещества. На второ място, съдържанието на опасни химични съединения на изхода на комина надвишава всички допустими стандарти, което се отразява негативно на околната среда и човешкото здраве. И, напротив, при изгарянето на добре изсушена дървесина, димните газове се състоят главно от въглероден диоксид и водна пара, а работата на пещ с пещ отвън може да се прецени само от малкото движение на нагрятия въздух в горния разрез на комина.
Преди да поставите гориво, буталото се отстранява и се оставя настрани, а пространството вътре в печката се запълва с дърва за огрев. Трябва да се помни, че топлинната мощност и продължителността на нагревателя зависят от плътността на полагане, така че всички интервали между дървените трупи трябва да бъдат покрити с дървени стърготини, дървени стърготини, дървесна обвивка и др. Отгоре се поставя кърпа, навлажнена с керосин или дизелово масло, монтирано е бутало за разпределение на въздуха и устройството е затворено с капак.
Запалването на пещта се извършва при напълно отворена клапа на тръбата за подаване на въздух, хвърляйки в нея горящи парцали, които предварително са импрегнирани с течност за барбекю или други подобни. След изгарянето на дърва за огрев, подаването на въздух се намалява.
За да направите безопасността на работата на котлона, следвайте няколко прости правила:
- Ако за запалване на дърва се използват запалими вещества (бензин, керосин, разтворител, специални продукти за печки на дърва), е необходимо да инсталирате бутало и да затворите печката с капак, преди да хвърлите запалена клечка.
- Не се препоръчва използването на пластмаса, гума, полистирол и други битови отпадъци като гориво по две причини. Първо, това се дължи на отделянето на изключително токсични вещества, които не могат да бъдат изгорени дори при пиролитично разлагане. На второ място, по време на високотемпературното окисляване на такива материали се отделя огромно количество сажди, което означава, че ще трябва да почиствате комина няколко пъти месечно.
Често, за да се направи една печка с подложка по-представителна, тялото й се грундира и боядисва в желания цвят. Трябва да се разбере, че по време на работа на пещта боята ще изгори, следователно е по-добре да се използват само защитни съединения, предназначени да работят при условия на висока температура.
Въпреки факта, че разграждането на пиролизата допринася за най-пълно изгаряне на гориво, по време на работа на пещта все още се образува малко количество сажди и пепел. За да премахнете въглеродните отлагания, можете да използвате метален скрепер и четка. Що се отнася до пепелта, най-удобно е да почиствате печка с бъчви от варел с желязна лъжичка с къса дръжка. Не е необходимо да премахвате всички пепел. Слой пепел с дебелина 2-3 см ще работи като топлоизолация, предотвратявайки изгарянето на дъното на нагревателя.
Видео: как работи домашна печка с дълго горене
Такова производително и икономично отоплително устройство, като печка с дълго горене, ще ви позволи успешно да отоплявате всякакви технически и битови помещения. Благодарение на опростения, неизискващ към дизайна материали, можете да изградите печка със собствените си ръце, като отделите само няколко часа за нея. Точно изчисление, точност в работата и внимание по време на работа - това са всички условия, необходими за получаване на комфортна, уютна и най-важното - безопасна топлина.























